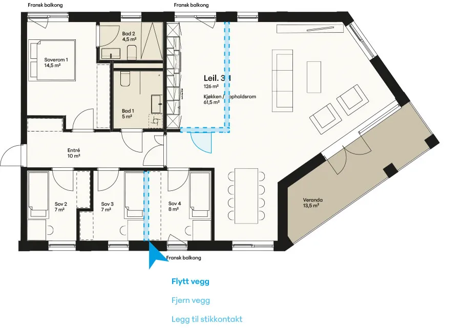
Vi ønsker å gi deg muligheten til å gjøre enda flere tilpasninger i boligen enn andre prosjekter kan gi deg. Ønsker du å flytte eller fjerne en vegg? Skape et enda større soverom eller garderobe?
Om du kjøper en leilighet i Frydia Gaarden før byggestart får du muligheten til å påvirke selve planløsningen på din bolig. Vi strekker oss lenger for at du skal få din drømmebolig - uten at det skal koste deg skjorta.
Hva kan jeg endre?
Du kan påvirke plasseringen av interne vegger, stikkontakter, interne dører, plassering av spotter og kontaktpunkt for lys. Visse byggtekniske begrensninger vil forekomme.
Har du noen ideer i tankene? Kontakt oss for å ta samtalen om dine muligheter for tilpasninger.

Bestill dine tilpasninger ved å kontakte:
Adresse til vårt visningssenter:
Kirkegata 1, 1830 Askim